Chalets

Vous trouverez ci-joint les dimensions autorisées pour la construction d'un chalet.

Vous pouvez construire ou faire construire votre chalet.

Réservez votre terrain maintenant et construisez votre chalet plus tard. Des frais de réservations s'appliqueront.

Terrains 1 à 56
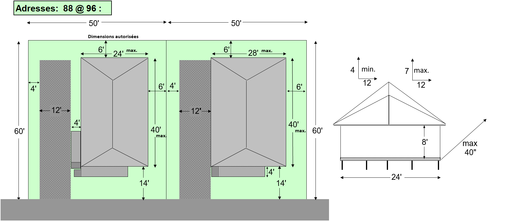
Terrains 88 à 96
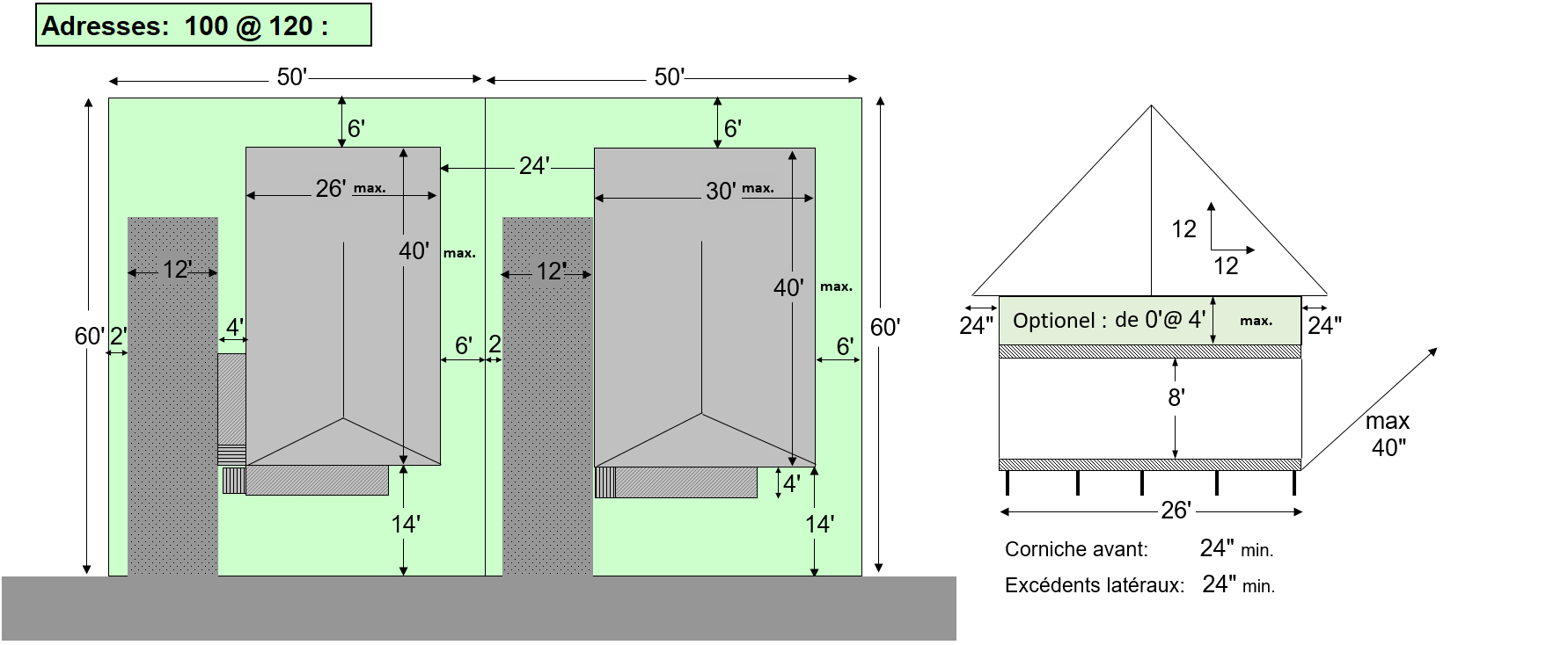
Terrains 100 à 120
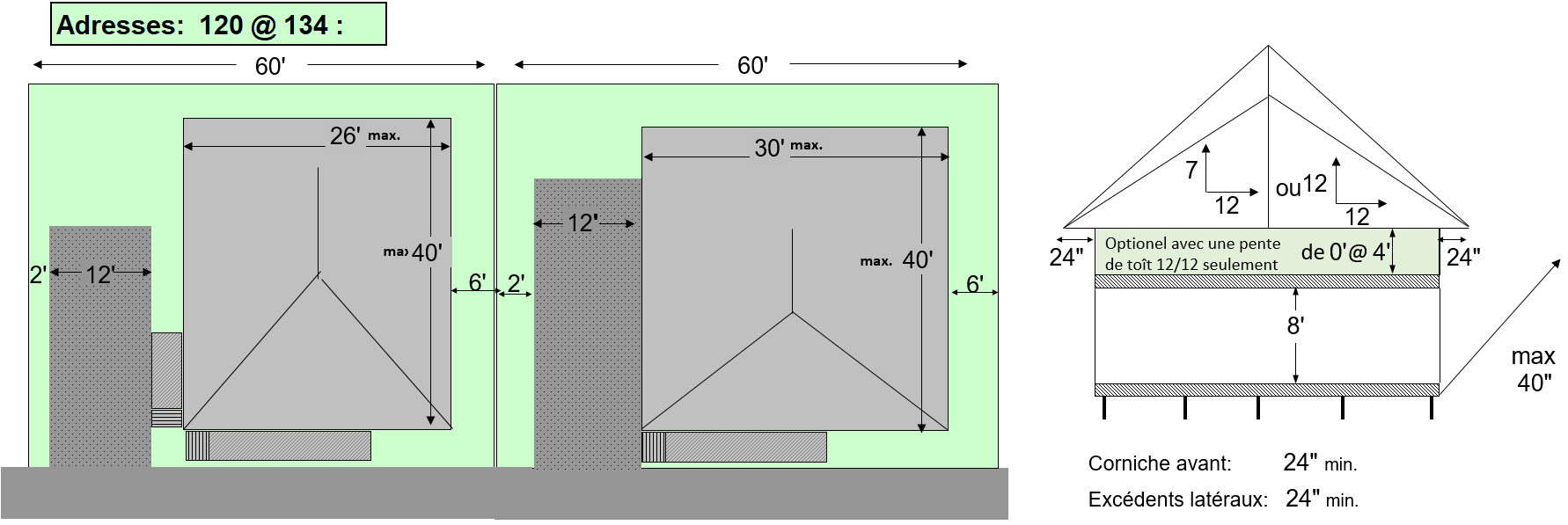
Terrains 120 à 134